1. Nhà cấp 4 – biểu tượng của sự tiện nghi và gắn kết gia đình Việt
Nhà cấp 4 từ lâu đã trở thành biểu tượng của nếp sống Việt truyền thống – giản dị, gần gũi và ấm cúng.
Trong xu hướng hiện đại, nhà cấp 4 không chỉ là nơi “an cư” mà còn là không gian thể hiện gu thẩm mỹ và phong cách sống thông minh của gia chủ.
Với diện tích vừa phải (thường từ 60m² – 150m²), việc bố trí các phòng trong nhà cấp 4 đòi hỏi sự tính toán tỉ mỉ để vừa đảm bảo công năng sử dụng, vừa đạt tính thẩm mỹ và phong thủy.
Một ngôi nhà cấp 4 được bố trí hợp lý không chỉ giúp tiết kiệm diện tích, mà còn mang lại cảm giác thoải mái, thông thoáng và thuận tiện trong sinh hoạt hằng ngày.
2. Nguyên tắc chung khi bố trí các phòng trong nhà cấp 4
Trước khi đi sâu vào từng khu vực, bạn cần nắm rõ 4 nguyên tắc vàng trong bố trí không gian nhà cấp 4:
2.1. Nguyên tắc cân đối – hợp lý
-
Các phòng phải được sắp xếp khoa học, tránh chồng chéo hoặc cản trở lối di chuyển.
-
Nên ưu tiên không gian sinh hoạt chung (phòng khách – bếp) ở trung tâm, còn các không gian riêng tư (phòng ngủ, nhà vệ sinh) nên bố trí ở hai bên hoặc phía trong.
2.2. Nguyên tắc lấy sáng – thông gió tự nhiên
Nhà cấp 4 thường có hạn chế về chiều cao, nên cần thiết kế cửa sổ, giếng trời hoặc ô thông gió hợp lý để tận dụng ánh sáng và không khí tự nhiên.
Điều này giúp tiết kiệm điện năng, hạn chế ẩm mốc, đồng thời mang lại sinh khí cho toàn bộ ngôi nhà.
2.3. Nguyên tắc phong thủy – cân bằng năng lượng
-
Phòng khách nên đặt phía trước, hướng sáng và hợp mệnh gia chủ.
-
Phòng bếp tránh đặt đối diện cửa chính hoặc phòng ngủ.
-
Phòng ngủ nên ở vị trí yên tĩnh, tránh thẳng cửa ra vào.
-
Phòng thờ cần trang nghiêm, cao ráo, tránh đặt cạnh khu vệ sinh hoặc khu bếp.
2.4. Nguyên tắc vật liệu – màu sắc đồng bộ
Sử dụng vật liệu nội thất nhẹ, bền, dễ thi công như tấm nhựa nội thất Zukoplast giúp tạo không gian sáng, hiện đại và bền lâu.
Màu sắc trung tính (trắng, xám, vân gỗ sáng) giúp mở rộng thị giác, tạo cảm giác thông thoáng cho nhà cấp 4.
3. Cách bố trí phòng khách – “trái tim” của ngôi nhà cấp 4
Phòng khách là nơi đón tiếp, sinh hoạt chung, đồng thời cũng là khu vực mang giá trị phong thủy cao nhất.
3.1. Vị trí phòng khách
-
Nên đặt ngay sau cửa chính, ở vị trí trung tâm, thuận tiện cho việc di chuyển.
-
Tránh đặt sau cùng hoặc sâu trong nhà vì sẽ làm giảm sinh khí và khiến không gian bí bách.
3.2. Cách bố trí nội thất
-
Bộ sofa hoặc bàn ghế đặt quay mặt ra cửa chính hoặc cửa sổ lớn để đón ánh sáng.
-
Kệ tivi, tủ trang trí nên đặt sát tường, ưu tiên dạng treo tường bằng nhựa Zukoplast 02 – Bạc để tiết kiệm diện tích.
-
Sử dụng vách lam nhựa hoặc tấm ốp nano để ngăn nhẹ giữa phòng khách và bếp, vừa tạo điểm nhấn, vừa giữ sự riêng tư.
3.3. Mẹo phong thủy
-
Hướng phòng khách hợp mệnh gia chủ sẽ giúp thu hút tài khí và vận may.
-
Tránh đặt gương hoặc kính phản chiếu trực diện cửa chính.
4. Bố trí phòng bếp và phòng ăn – nơi gắn kết gia đình
Phòng bếp là không gian quan trọng thứ hai sau phòng khách.
Trong nhà cấp 4, bếp thường được thiết kế liền kề phòng khách hoặc cuối nhà để thuận tiện cho sinh hoạt.
4.1. Cách sắp xếp hợp lý
-
Bếp nấu nên đặt hướng tây nam hoặc đông nam, tránh thẳng cửa ra vào.
-
Tủ bếp nên bố trí chữ L hoặc chữ I, giúp tối ưu diện tích.
-
Nên sử dụng tấm nhựa nội thất chống ẩm Zukoplast để làm tủ bếp – giúp chống mối mọt, chịu nhiệt và dễ vệ sinh.
-
Phòng ăn đặt liền kề bếp, có thể ngăn bằng lam sóng nhựa hoặc vách ngăn mở để tạo cảm giác thông thoáng.
4.2. Màu sắc – ánh sáng
Gam màu ấm nhẹ như kem, vàng nhạt hoặc vân gỗ sồi giúp không gian bếp trở nên ấm cúng, kích thích vị giác và gắn kết gia đình.
5. Bố trí phòng ngủ – riêng tư, yên tĩnh và hài hòa
Phòng ngủ là không gian cá nhân, nơi nghỉ ngơi sau một ngày làm việc.
Do diện tích nhà cấp 4 không lớn, cần bố trí phòng ngủ gọn gàng và hợp phong thủy.
5.1. Vị trí
-
Nên đặt ở phía trong hoặc hai bên nhà, tránh thẳng cửa chính.
-
Không nên đặt giường dưới xà ngang hoặc đối diện gương.
5.2. Cách sắp xếp nội thất
-
Giường ngủ nên quay đầu về hướng tốt (tùy theo mệnh).
-
Tủ quần áo, bàn phấn, bàn làm việc đặt sát tường để tiết kiệm không gian.
-
Có thể dùng tủ nhựa cao cấp Zukoplast vân gỗ hoặc ánh bạc – nhẹ, dễ thi công, phù hợp khí hậu Việt Nam.
5.3. Phong thủy phòng ngủ
-
Tránh dùng đèn quá sáng, nên chọn ánh vàng ấm.
-
Giữ không khí trong lành bằng cửa sổ hoặc quạt thông gió.
6. Bố trí phòng thờ – trang nghiêm và chuẩn hướng phong thủy
Phòng thờ là không gian tâm linh đặc biệt, thể hiện lòng thành kính với tổ tiên.
Với nhà cấp 4, phòng thờ có thể bố trí riêng một phòng nhỏ hoặc tích hợp trên tầng lửng, gác mái.
6.1. Vị trí phòng thờ
-
Nên đặt ở vị trí cao nhất, yên tĩnh và sạch sẽ, tránh gần khu vệ sinh hoặc bếp.
-
Hướng bàn thờ nên trùng với hướng nhà hoặc hướng tốt của gia chủ.
6.2. Vật liệu và thiết kế
-
Có thể sử dụng vách ngăn phòng thờ bằng tấm nhựa lam sóng hoặc nhựa vân gỗ Zukoplast, vừa nhẹ, vừa bền.
-
Tông màu gỗ trầm hoặc ánh đồng tạo cảm giác ấm cúng, linh thiêng.
7. Bố trí nhà vệ sinh và phòng tắm – khoa học và sạch sẽ
Phòng tắm, nhà vệ sinh trong nhà cấp 4 thường có diện tích nhỏ nên cần tối ưu hóa công năng và thông thoáng.
7.1. Vị trí
-
Nên đặt ở góc cuối nhà hoặc phía sau bếp.
-
Tránh đặt chung vách với phòng thờ hoặc giường ngủ.
7.2. Thiết kế
-
Dùng vách ngăn kính hoặc nhựa chống nước Zukoplast để tách khu khô – ướt.
-
Sàn nên dốc nhẹ về hướng thoát nước, tránh ẩm đọng.
-
Sử dụng tông sáng (trắng, xám bạc) để tạo cảm giác rộng và sạch.
8. Gợi ý sơ đồ bố trí nhà cấp 4 thông dụng nhất 2025
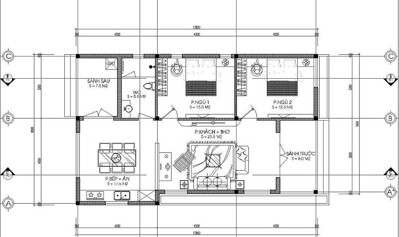
8.1. Mẫu 1: Nhà cấp 4 1 phòng khách – 2 phòng ngủ – 1 bếp
Phù hợp với gia đình trẻ hoặc cặp vợ chồng mới cưới.
Sơ đồ:
-
Trước nhà: Phòng khách
-
Giữa: Phòng ngủ 1 & Phòng ngủ 2
-
Cuối: Khu bếp – ăn – vệ sinh
8.2. Mẫu 2: Nhà cấp 4 có 3 phòng ngủ – 1 phòng thờ
Phù hợp với gia đình 3 thế hệ:
-
Phòng khách đặt giữa trung tâm.
-
Hai bên là 3 phòng ngủ.
-
Phòng thờ đặt ở phía trên trục chính, hướng ra cửa.
8.3. Mẫu 3: Nhà cấp 4 có gác lửng
-
Tầng trệt: Phòng khách, bếp, 1 phòng ngủ, vệ sinh.
-
Gác lửng: 2 phòng ngủ và phòng thờ nhỏ.
Ưu điểm: tăng diện tích sử dụng mà không cần mở rộng nền.
9. Mẹo tối ưu nội thất giúp nhà cấp 4 rộng và sang hơn
-
Dùng nội thất đa năng:
-
Giường có ngăn kéo, bàn gấp, tủ âm tường, bàn ăn kéo dài.
-
-
Chọn vật liệu sáng và nhẹ:
-
Tấm nhựa Zukoplast, lam sóng, phào chỉ PVC giúp không gian thoáng hơn.
-
-
Tận dụng ánh sáng tự nhiên:
-
Cửa sổ lớn, giếng trời, rèm mỏng sáng màu.
-
-
Giữ màu sắc đồng bộ:
-
Kết hợp trắng – bạc – ghi – gỗ nhạt để tạo cảm giác liền mạch.
-
-
Bố trí cây xanh và tiểu cảnh nhỏ:
-
Giúp cân bằng năng lượng, mang lại sinh khí cho ngôi nhà.
-
10. Gợi ý phối vật liệu Zukoplast trong nhà cấp 4 hiện đại
| Khu vực | Màu sắc & vật liệu gợi ý | Tác dụng nổi bật |
|---|---|---|
| Phòng khách | Zukoplast 02 Bạc + Lam sóng đen | Sang trọng, phản sáng |
| Phòng bếp | Zukoplast vân gỗ + kính trắng | Ấm cúng, sạch đẹp |
| Phòng ngủ | Zukoplast 16 Ghi + vân sồi sáng | Êm dịu, tinh tế |
| Phòng thờ | Zukoplast vân gỗ trầm + đèn LED âm | Trang nghiêm, linh thiêng |
| Phòng tắm | Zukoplast trắng bóng + gạch vân đá | Sáng, sạch, chống ẩm |
11. Nhà cấp 4 đẹp là sự hòa hợp giữa công năng và cảm xúc
Cách bố trí các phòng trong nhà cấp 4 không chỉ là bài toán kỹ thuật, mà còn là nghệ thuật cân bằng giữa tiện nghi – thẩm mỹ – phong thủy.
Chỉ cần một chút tinh tế trong cách sắp xếp và chọn vật liệu, bạn hoàn toàn có thể biến không gian nhỏ thành tổ ấm lý tưởng.
Với sự đồng hành của tấm nhựa nội thất Zukoplast, ngôi nhà của bạn sẽ không chỉ đẹp – bền – sạch, mà còn mang hơi thở hiện đại, xanh và tiện nghi, đúng chuẩn xu hướng sống 2025.
Xem thêm video nội thất nhựa cao cấp tại đây









